ARQUITECTURA SIN PRECONCEPTOS
Inicio
Obras
Proyectos
Inicio
Noticias
> Quincho en Wilde
01/01/2024
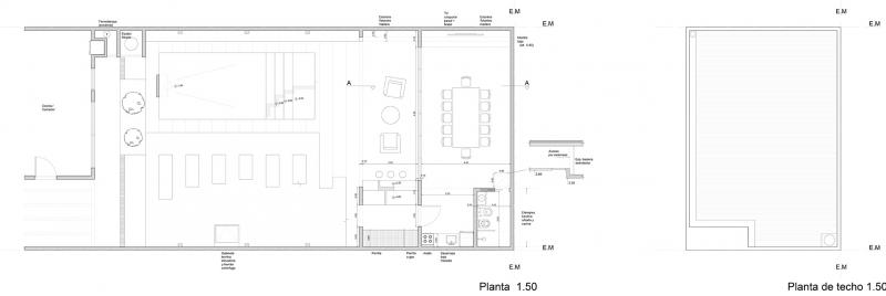
Quincho en Wilde
Ver Vista 3d del proyecto
Encontrá lo que buscás