ARQUITECTURA SIN PRECONCEPTOS
Inicio
Obras
Proyectos
Inicio
Noticias
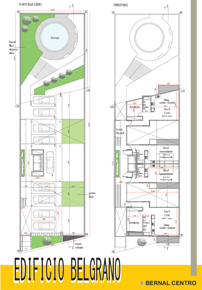
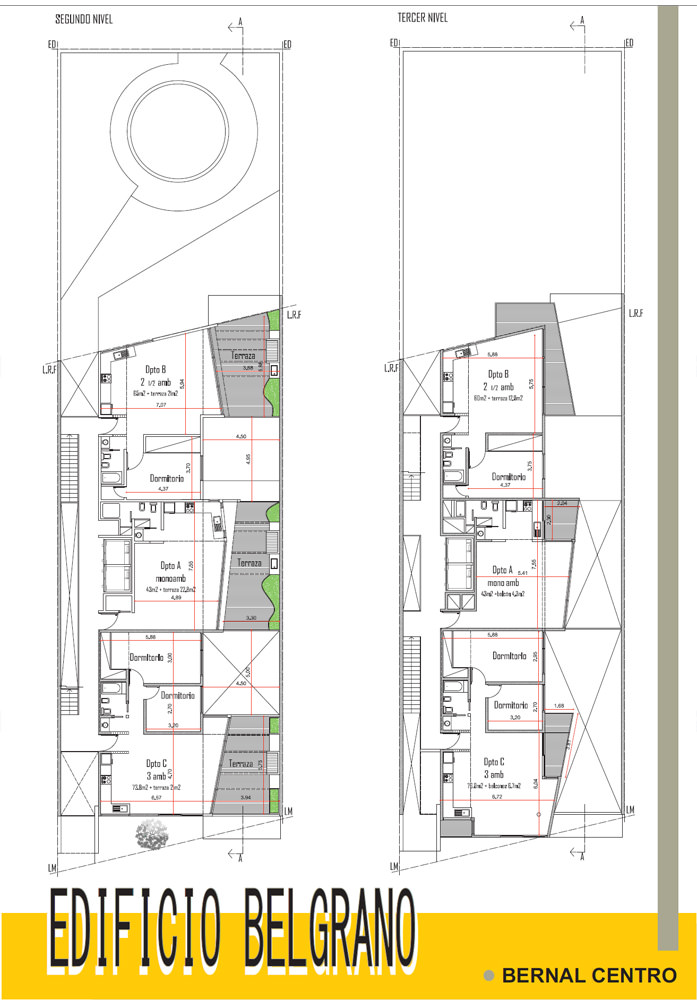
> Edificio de departamentos en Bernal.
01/01/2022
Edificio de departamentos en Bernal.
Encontrá lo que buscás